卡特彼勒3064/6發動機更換連桿和活塞維修技術故障排除方法
此程序用來確定連桿的長度。必須知道連桿的長度,從而才能購買正確長度的連桿備件。
根據以下特性確定卡特彼勒3064/6發動機連桿長度:
長度級別字母
測量長度
如果利用長度級別字母確定長度級別,請參閱表1。如果必須通過測量連桿長度確定長度級別,請參閱圖1。
|
表1 | ||
|
卡特彼勒3064/6發動機連桿的長度級別 | ||
|
用于生產的長度級別 |
用于更換的長度級別 |
連桿長度(CRL) |
|
"A"和"B" |
"B" |
|
|
"C"和"D" |
"D" |
|
|
"E"和"F" |
"F" |
|
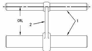
如果在卡特彼勒3064/6發動機連桿上無法找到長度級別標記,則通過執行以下程序測量連桿長度("CRL")。

|
(1)測量銷 (2)連桿 |
利用客戶提供的以下工具測量圖1內規定的連桿(2)的距離:
適當的距離測量儀
測量銷(1)
確保測量銷(1)平行。如果測量銷不平行,請參閱"連桿的變形量"。從而確定變形量是否在公差范圍內。
測量"CRL"。將測量得到的"CRL"與表1內給出的"CRL"進行比較。連桿的長度級別由此"CRL"決定。
卡特C27發動機大小瓦,卡特C27發動機止推瓦,卡特C27發動機曲軸,卡特C27發動機凸輪軸,卡特C27發動機油封,卡特C27發動機渦輪增壓器