康明斯柴油發電機組PCC3100模擬電路板A33功能介紹
康明斯柴油發電機組PCC3100模擬電路板是控制盤內唯一沒有指示燈(LED)的電路板。模擬電路板有并聯用和非并聯用二種類型。模擬電路板接收所有模擬信號,然后將模擬信號轉換成0-5伏特的直流電信號,送到數字電路板。
康明斯柴油發電機組PCC3100模擬電路板A33接線頭功能介紹
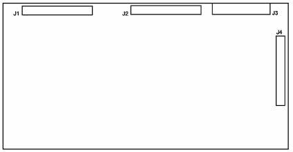
模擬電路板上共有4組接線頭功能介紹,這些接線頭功能介紹通過帶狀電纜焊在電路板上,它們分別是:
J1連接到發動機界面電路板(A31)上的J2。
J2連接到數字電路板(A32)上的J3。
J3備用模擬信號輸入。
J4連接到用戶界面電路板(A34)上的J5。

康明斯柴油發電機組PCC3100模擬電路板實物圖