康明斯柴油發電機組PCC3100數字顯示電路板A35功能介紹
數字顯示電路板連接所有的儀表和指示燈(LED)指示燈。
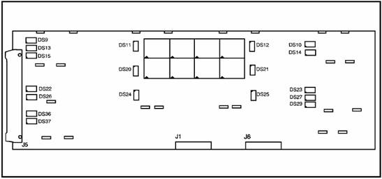
康明斯柴油發電機組PCC3100接線頭功能介紹
數字顯示電路板上有3個接線頭功能介紹,它們分別是:
J1連接到前端面板薄膜開關。
J5連接到數字電路板(A32)上的J2(當拆下J5時,顯示電路板將失去顯示功能,但PCC仍可正常操作)。
J6連接到各儀表、運行/停機/自動選擇開關和發動機界面電路板(A31)上的J3。
康明斯柴油發電機組PCC3100指示燈(LED)介紹
數字顯示電路板共有18組指示燈(LED),用以指示發電機組的運行狀況和控制盤模式/開關選擇等。
DS9機組不在自動狀態(NotInAuto)(紅色)。
DS10上表盤(綠色)。
DS11左上箭號指示燈(綠色)。
DS12右上箭號指示燈(綠色)。
DS13報警(淡黃色)。
DS14下表盤(綠色)。
DS15故障停機(紅色)。
DS20左下箭號指示燈(綠色)。
DS21右下箭號指示燈(綠色)。
DS22僅適用于自動主用電源故障(AMF)或并聯機組:斷路器閉合(紅色)。
DS23A相(綠色)。
DS24復位箭號指示燈(綠色)。
DS25主功能箭號指示燈(綠色)。
DS26僅AMF應用:斷路器斷開(綠色)。
DS27B相(綠色)
DS29C相(綠色)
DS36AMF應用:斷路器閉合(紅色)或并聯應用:斷路器斷開(綠色)。
DS37僅AMF應用:斷路器斷開(綠色)。

康明斯柴油發電機組PCC3100數字顯示電路板實物圖